Listing Tools

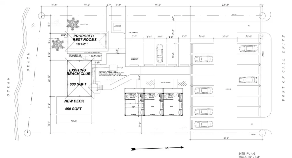
Beachfront Bar & Restaurant Seize the chance to own this prime oceanfront restaurant and bar at Port-O-Call, boasting 100 ft of direct beachfront on a 30,500 sq ft lot zoned Tourist Commercial. The property includes an estimated 1,575 sq ft building with indoor and outdoor seating, offering breathtaking sea views and a perfect blend of rustic charm and modern coastal style. Guests can sip cocktails on the deck just steps from the sand or enjoy the breezy open-air bar under a wood-beamed roof. With ample parking, great visibility, and a ready-to-operate setup, this property is perfect for attracting both locals and tourists. The ultimate spot for sunset drinks, live music, and unforgettable dining experiences.

Property Details of Port Of Call Drive 19

Property Details

Map Location

Courtesy of the MLS

The data relating to real estate for sale/lease on this website comes in part from a cooperative data exchange program of the Bahamas Multiple Listing Service (MLS) in which these Brokers participate (BREA). The properties displayed may not be all of the properties in the Bahamas MLS database, or all of the properties listed with Brokers participating in the cooperative data exchange program. Properties listed by Brokers other than this Broker/Agent are marked with the IDX Symbol, indicating an agreement to exchange property information. Detailed information about such properties are noted as Courtesy of: The Bahamas MLS. Information provided is thought to be reliable but is not guaranteed to be accurate. You are advised to verify facts that are important to you. No warranties, expressed or implied, are provided for the data herein, or for their use or interpretation by the user. This information is protected from unlawful duplication by copyright.

Hi there! How can we help you?

Contact us using the form below or give us a call.

Send Us A Message:

I agree to receive marketing and customer service calls and text messages from Bahamas Realty. To opt out, you can reply 'stop' at any time or click the unsubscribe link in the emails. Consent is not a condition of purchase. Msg/data rates may apply. Msg frequency varies. Privacy Policy.

Do not fill in this field:

This site is protected by reCAPTCHA and the Google Privacy Policy and Terms of Service apply.

Hi there! How can we help you?

Contact us using the form below or give us a call.

Send Us A Message:

Do not fill in this field:

This site is protected by reCAPTCHA and the Google Privacy Policy and Terms of Service apply.

Hi there! How can we help you?

Contact us using the form below or give us a call.

Send Us A Message:

Do not fill in this field:

This site is protected by reCAPTCHA and the Google Privacy Policy and Terms of Service apply.

Do not fill in this field:

This site is protected by reCAPTCHA and the Google Privacy Policy and Terms of Service apply.

Do not fill in this field:

This site is protected by reCAPTCHA and the Google Privacy Policy and Terms of Service apply.

Do not fill in this field:

This site is protected by reCAPTCHA and the Google Privacy Policy and Terms of Service apply.

$

Do not fill in this field:

This site is protected by reCAPTCHA and the Google Privacy Policy and Terms of Service apply.