Listing Tools

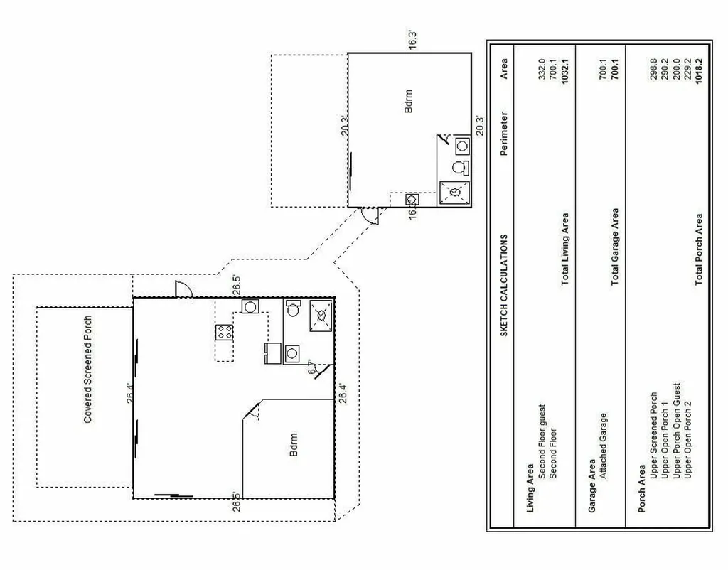
With mesmerizing views of The Bight of Old Robinson, this elevated cozy 2b/2b, pod-style waterfront home in the friendly community of Little Harbour is on the market for the first time ever. Built in 2005 and then expanded in 2015, the estate blends comfort, functionality, and self-sufficiency in a spectacular island setting. 160 feet of shoreline, a small boat ramp & small boat basin at the back door, perfect for outdoor adventures of all kinds. A relaxing paddle or an exciting fly fish hunt to be had where this home overlooks the East Abaco Creeks National park - a haven for birdwatching, marine life, and peaceful paddling adventures. The main part of the home has 1 bdrm & 1 bthrm and comfy screened porch overlooking the sea. The guest bdrm pod has a full bathroom and a built-in kitchenette/wet bar. Offering 1,032 SF of air-conditioned living space over a 700 SF garage and workshop, including furniture and appliances. Construction: concrete slab ground floor, wood frame walls, asphalt roof. 20,000 gallons water storage, 18kw diesel generator, 18 PV panels, 48v Lithium batteries.

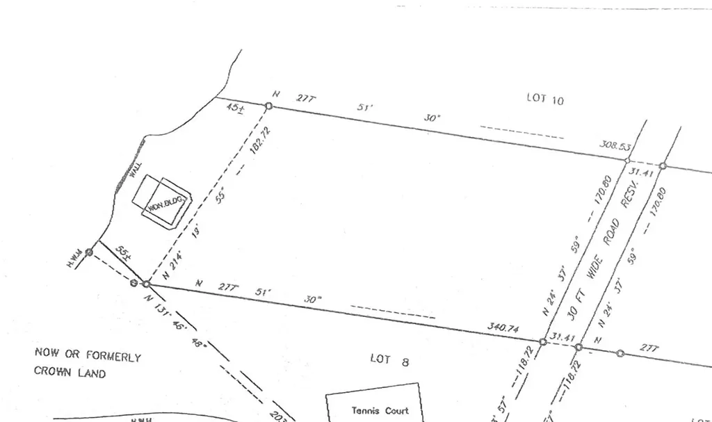
Property Details of Lot 9a Tom Curry's Point

Property Details

Interior Features

Utilities and Appliances

Map Location

Courtesy of the MLS

The data relating to real estate for sale/lease on this website comes in part from a cooperative data exchange program of the Bahamas Multiple Listing Service (MLS) in which these Brokers participate (BREA). The properties displayed may not be all of the properties in the Bahamas MLS database, or all of the properties listed with Brokers participating in the cooperative data exchange program. Properties listed by Brokers other than this Broker/Agent are marked with the IDX Symbol, indicating an agreement to exchange property information. Detailed information about such properties are noted as Courtesy of: The Bahamas MLS. Information provided is thought to be reliable but is not guaranteed to be accurate. You are advised to verify facts that are important to you. No warranties, expressed or implied, are provided for the data herein, or for their use or interpretation by the user. This information is protected from unlawful duplication by copyright.

Hi there! How can we help you?

Contact us using the form below or give us a call.

Send Us A Message:

I agree to receive marketing and customer service calls and text messages from Bahamas Realty. To opt out, you can reply 'stop' at any time or click the unsubscribe link in the emails. Consent is not a condition of purchase. Msg/data rates may apply. Msg frequency varies. Privacy Policy.

Do not fill in this field:

This site is protected by reCAPTCHA and the Google Privacy Policy and Terms of Service apply.

Hi there! How can we help you?

Contact us using the form below or give us a call.

Send Us A Message:

Do not fill in this field:

This site is protected by reCAPTCHA and the Google Privacy Policy and Terms of Service apply.

Hi there! How can we help you?

Contact us using the form below or give us a call.

Send Us A Message:

Do not fill in this field:

This site is protected by reCAPTCHA and the Google Privacy Policy and Terms of Service apply.

Do not fill in this field:

This site is protected by reCAPTCHA and the Google Privacy Policy and Terms of Service apply.

Do not fill in this field:

This site is protected by reCAPTCHA and the Google Privacy Policy and Terms of Service apply.

Do not fill in this field:

This site is protected by reCAPTCHA and the Google Privacy Policy and Terms of Service apply.

$

Do not fill in this field:

This site is protected by reCAPTCHA and the Google Privacy Policy and Terms of Service apply.